Grundrisse aus bereitgestellten Unterlagen
Grundrisse aus bereitgestellten Unterlagen ermöglichen eine klare, strukturierte und konsistente Aufarbeitung vorhandener Pläne. Bestehende Informationen werden geprüft, zusammengeführt und in eine präzise, gut lesbare Grundrissdarstellung überführt.

Wann sind Grundrisse aus bereitgestellten Unterlagen sinnvoll?
Wenn vorhandene Pläne ausreichen und kein Neuaufmaß erforderlich ist
Grundrisse aus bereitgestellten Unterlagen sind sinnvoll, wenn aktuelle und verlässliche Bestandspläne vorliegen und keine wesentlichen baulichen Änderungen vorgenommen wurden. Sie eignen sich insbesondere für Dokumentationszwecke, interne Planungen oder zur übersichtlichen Aufbereitung bestehender Unterlagen. Voraussetzung ist, dass die vorhandenen Pläne maßlich korrekt und inhaltlich vollständig sind. Sind diese Bedingungen erfüllt, können Grundrisse effizient und ohne Vor-Ort-Termin erstellt werden.
Welche Unterlagen entstehen aus bereitgestellten Unterlagen?
Auf Basis der bereitgestellten Pläne und Informationen entstehen maßstäbliche Grundrisse, die als PDF zur Verfügung gestellt werden (auf Wunsch auch gedruckt im Format A3). Die Zeichnungen bereiten die vorhandenen Unterlagen strukturiert, einheitlich und gut lesbar auf und stellen Raumaufteilungen sowie bekannte Maße übersichtlich dar. Sofern die erforderlichen Angaben vorliegen, kann ergänzend eine Wohnflächenberechnung nach der Wohnflächenverordnung (WoFlV) erstellt und ebenfalls als PDF oder in gedruckter Form übergeben werden. Die Qualität und Aussagekraft der Unterlagen richtet sich dabei maßgeblich nach Vollständigkeit und Aktualität der zur Verfügung gestellten Bestandspläne.
Anerkannte Methoden der Grundrisserstellung aus Unterlagen
Strukturierte Aufbereitung und regelkonforme Flächenermittlung
Die Erstellung der Grundrisse erfolgt auf Basis der bereitgestellten Pläne, Skizzen oder digitalen Unterlagen. Diese werden fachlich geprüft, konsistent aufbereitet und in eine einheitliche, maßstäbliche Darstellung überführt. Vorhandene Maße, Raumstrukturen und Flächenangaben werden systematisch übernommen und nachvollziehbar dargestellt.
Die Unterlagen bilden die Grundlage für maßstäbliche Grundrisse sowie eine Wohnflächenberechnung nach der Wohnflächenverordnung (WoFlV). Die Aufbereitung und Berechnung erfolgt regelkonform und transparent, sodass die Ergebnisse fachlich anerkannt, vergleichbar und zuverlässig verwertbar sind.


Warum mit mir?
Sachverständige Kompetenz, persönliche Betreuung und geprüfte Qualität
Als zertifizierter Sachverständiger für Immobilienbewertung nach ISO/IEC 17024 verfüge ich über fundiertes Sachverständigenwissen und ein tiefes Verständnis für Gebäude, Flächen und bauliche Zusammenhänge. Ergänzend dazu bin ich staatlich geprüfter Bautechniker (Hochbau) und verbinde fachliche Bewertungskompetenz mit praxisnaher Baukenntnis.
Ich begleite Sie persönlich während des gesamten Prozesses – von der ersten Abstimmung bis zur Übergabe der finalen Unterlagen. Die Grundrisse werden von mir oder meinem qualifizierten Team auf Basis der bereitgestellten Unterlagen erstellt und in jedem Fall fachlich geprüft und durch mich freigegeben. So erhalten Sie verlässliche, konsistente Unterlagen aus einer Hand, mit klarer Verantwortung und ohne Informationsverluste.
Ablauf von Grundrissen aus bereitgestellten Unterlagen
1. Kontaktaufnahme
Sie rufen mich an, schreiben per WhatsApp, E-Mail oder nutzen das Kontaktformular – ganz wie es Ihnen passt. Ein kurzer Satz reicht völlig.
2. Ihr persönliches Angebot
Beim Telefonat nenne ich Ihnen meist sofort einen festen Preis. Bei schriftlichen Anfragen erhalten Sie mein verbindliches Angebot in der Regel innerhalb von 12 Stunden (an Werktagen üblicherweise deutlich schneller).
3. Datenaufnahme und Prüfung der Unterlagen
Sie stellen uns Ihre vorhandenen Pläne, Skizzen oder digitalen Unterlagen zur Verfügung. Diese werden sorgfältig geprüft, inhaltlich eingeordnet und auf Vollständigkeit sowie Plausibilität bewertet. Auf dieser Grundlage entstehen maßstäbliche Grundrisse sowie eine Wohnflächenberechnung nach der Wohnflächenverordnung (WoFlV).
5. Fertigstellung & Übergabe
Ihre Unterlagen liegen Ihnen termingerecht vor – als PDF und auf Wunsch auch gedruckt. Kleinere Änderungswünsche setze ich selbstverständlich kostenfrei um.
Klare Darstellung des Bestands in einheitlicher Planqualität
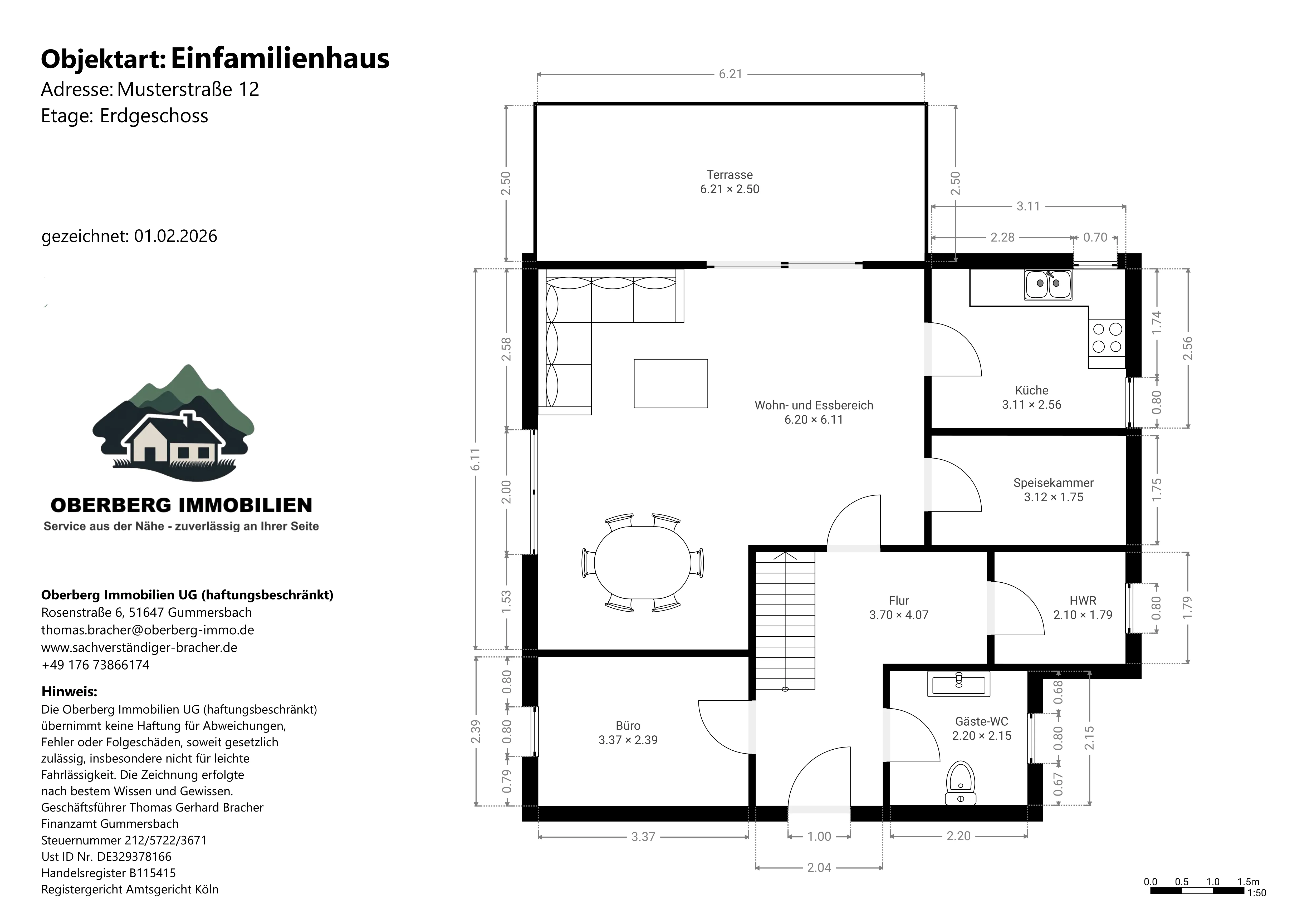
Beispiel fertiger Grundrisse
Maßstäblich, übersichtlich und fachlich sauber aufbereitet





Kosten und Transparenz
Nachvollziehbare Leistungen und klare Kostenstruktur
Die Vergütung erfolgt klar nach Absprache und richtet sich pauschal nach dem Umfang der beauftragten Leistung. Maßgeblich sind Objektgröße, Komplexität und der gewünschte Leistungsumfang. So sind die Kosten von Beginn an transparent und nachvollziehbar.
Die Unterlagen werden standardmäßig als PDF bereitgestellt. Auf Wunsch erhalten Sie diese zusätzlich in farbiger Druckausführung gegen einen Aufpreis von 5 € (inklusive Versand, zzgl. MwSt.).
Objektart | Leistungsumfang | Vergütung | Lieferzeit (ab Datenübermittlung, Sonntag ausgenommen) |
Eigentumswohnung | 2D-/3D-Grundriss + Wohnflächenberechnung | 150,– € zzgl. MwSt. | Innerhalb von 48-72 Stunden |
Einfamilienhaus | 2D-/3D-Grundriss + Wohnflächenberechnung | 180,– € zzgl. MwSt. | Innerhalb von 48-72 Stunden |
Zweifamilienhaus | 2D-/3D-Grundriss + Wohnflächenberechnung | 280,– € zzgl. MwSt. | Innerhalb von 48-72 Stunden |
Mehrfamilienhaus bis 4 WE | 2D-/3D-Grundriss + Wohnflächenberechnung | 380,– € zzgl. MwSt. | Innerhalb von 48-72 Stunden |
Mehrfamilienhaus ab 5 WE | 2D-/3D-Grundriss + Wohnflächenberechnung | 480,– € zzgl. MwSt. | Innerhalb von 48-72 Stunden |
Direkter persönlicher Kontakt
Unverbindlich anfragen
Schnelle Rückmeldung und ehrliche Einschätzung
Effiziente Grundrisserstellung ohne Vor-Ort-Termin – deutschlandweit verfügbar
Häufige Fragen zu Grundrissen aus bereitgestellten Unterlagen
Antworten zu Ablauf, Voraussetzungen und Leistungen
Geeignet sind vorhandene Baupläne, Bestandspläne, Grundrissskizzen oder digitale Zeichnungen. Wichtig ist, dass die Unterlagen möglichst vollständig, aktuell und maßlich plausibel sind.
Ja. Die Grundrisse werden ausschließlich auf Basis der bereitgestellten Unterlagen erstellt. Ein Vor-Ort-Aufmaß ist nur dann erforderlich, wenn die vorhandenen Pläne unvollständig oder nicht verlässlich sind.
Die Genauigkeit richtet sich nach Qualität und Aktualität der zur Verfügung gestellten Pläne. Die Unterlagen werden fachlich geprüft und konsistent aufbereitet, ersetzen jedoch kein Neuaufmaß bei abweichendem Gebäudebestand.
Ja. In den jeweiligen Paketpreisen ist stets eine Wohnflächenberechnung nach der Wohnflächenverordnung (WoFlV) enthalten.
Die Lieferung erfolgt standardmäßig als PDF. Auf Wunsch sind die Grundrisse auch farbig gedruckt im Format A3 erhältlich.
Ja. Da kein Vor-Ort-Termin erforderlich ist, kann die Leistung deutschlandweit erbracht werden – unabhängig vom Standort der Immobilie.
Die Vergütung erfolgt pauschal nach Umfang und Komplexität der Unterlagen und wird vorab transparent abgestimmt.
Unverbindlich anfragen und persönlich beraten lassen
Ihr Anliegen kurz schildern – ich melde mich zeitnah zurück
E-Mail
Telefon
Mobil: +49 176 73866174 (bessere Erreichbarkeit)
Telefon: +49-02261 9949685
